Büro- oder Praxisfläche in bester Zentrumslage in Erlangen
Objektbeschreibung
Objekttitel
Büro- oder Praxisfläche in bester Zentrumslage in Erlangen
Dreizeiler
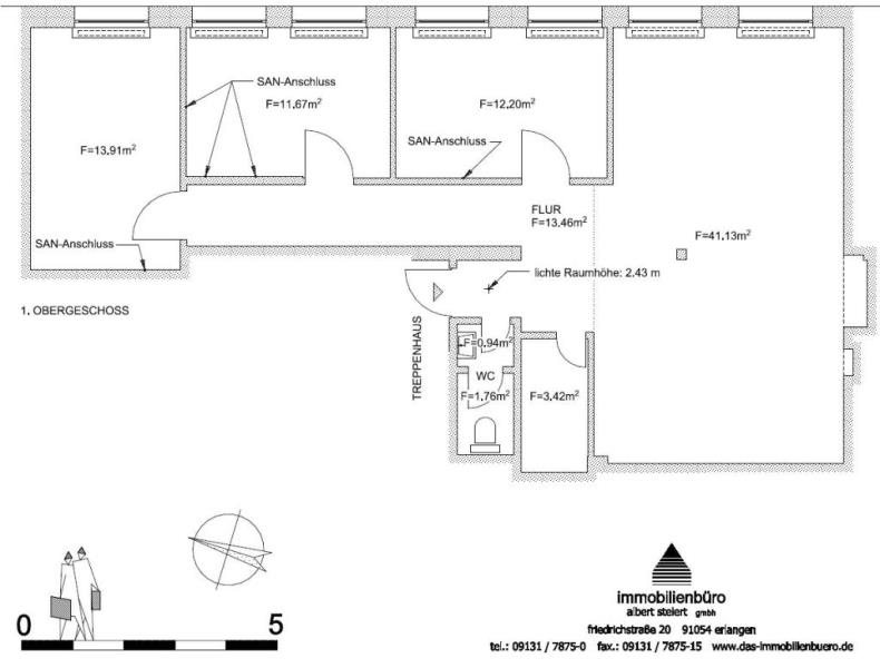
1. OG
Lage
Das Wohn- und Geschäftshaus befindet sich inmitten der Fußgängerzone in der Nähe des Marktplatzes und bietet alle Vorteile des absoluten Zentrums. Die hervorragende Infrastruktur zeichnet sich durch öffentliche Verkehrsmittel, die Nähe zum Hauptbahnhof und einen guten Autobahnanschluss aus. Hier sind Sie bestens für Ihre Mitarbeiter und Kunden erreichbar.
Ausstatt_beschr
Einbauküche im Büro, LED-Leuchten in Decke integriert.. EDV Verkabelung
neuwertige Ausstattung, neue Fenster
Objektbeschreibung
Diese Gewerbefläche befindet sich im 1. Obergeschoss eines Wohn- und Geschäftshauses mit vier Parteien in der Fußgängerzone Erlangens. Das Objekt umfasst knapp 100 qm und verfügt über drei abgeschlossene Räume, einen offenen Empfangsbereich, eine Teeküche sowie ein WC. Die Fläche wuirde vollständig vor ca. 3 Jahren modernisiert.
Es sind verschiedene Nutzungsarten, beispielsweise als Büro oder als Praxis o.ä. denkbar.
Sonstige_angaben
Die Räume zeichnen sich vor allem durch ihre zentrale Lage im Zentrum von Erlangen aus. Öffentliche Verkehrsmittel, die Nähe zum Hauptbahnhof, sowie ein guter Autobahnanschluss bieten eine hervorragende Infrastruktur. Sämtliche Einrichtungen des täglichen Bedarfs sind in fußläufiger Umgebung ausreichend vorhanden.
Überblick Objekt Nr. G1680017MS
- Kaltmiete¹
- 1.300,00 €
- Warmmiete
- 1.580,00 €
- Nebenkosten
- 280,00 €
- Kaution
- 3.900,00 €
- Provision
- 3,57 Monatskaltmieten inkl. 19%MwSt. inkl. MwSt.
- Nutzfläche
- 98,5 m²
- Gesamtfläche
- 98,5 m²
- Bürofläche
- 98,5 m²
- Anzahl Zimmer
- 4,0
- Teilbar ab
- 98,5 m²
- Befeuerung
- Öl
- Frei ab
- nach Vereinbarung
Energieausweis
- Energieausweistyp
- Verbrauchsausweis
- Gültig bis
- 12.04.2026
- Energiekennwert
- 95,00 kWh/(m²*a)
- Mit Warmwasser
- Ja
- Energieeffizienzklasse
- C
- Baujahr
- 1995










