Bezugsfreie 3-Zimmer-Dachgeschoss-Wohnung mit Balkon in Nürnberg-West - DG rechts
Objektbeschreibung
Objekttitel
Bezugsfreie 3-Zimmer-Dachgeschoss-Wohnung mit Balkon in Nürnberg-West - DG rechts
Dreizeiler
DG rechts
Lage
Das Mehrfamilienhaus befindet sich im Nürnberger Westen, einem beliebten Stadtteil, der sich sowohl durch seine gute Anbindung an das öffentliche Verkehrsnetz als auch durch seine Nähe zu Einkaufsmöglichkeiten, Schulen und Freizeitangeboten auszeichnet .
Ausstatt_beschr
• Balkon
• Bad mit Wanne und Dusche
• Gäste-WC
• Abstellraum
• KFZ-Stellplatz inkl.
• Kellerabteil
• Waschraum mit eigenem Waschmaschinenanschluss
• Kunststofffenster
• Außenrollos
• Oberböden: Fliesen, Linoleum
Objektbeschreibung
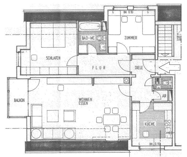
Diese attraktive 3-Zimmer-Wohnung befindet sich im 2. Obergeschoss/ Dachgeschoss eines gepflegten Mehrfamilienhauses mit nur sechs Parteien. Das Gebäude wurde im Jahr 1988 in massiver Bauweise auf einem ca. 944 m² großen Grundstück errichtet.
Mit einer Wohnfläche von ca. 94,00 m² überzeugt die Wohnung durch eine durchdachte Raumaufteilung und einen großzügigen, nach Süden ausgerichteten Balkon. Ein separates Kellerabteil sowie ein Kfz-Außenstellplatz sind im Kaufpreis bereits enthalten.
Zur gemeinschaftlichen Nutzung stehen ein Fahrradkeller sowie ein Wäschetrockenraum mit eigenem Waschmaschinenanschluss zur Verfügung.
Die bezugsfreie Wohnung bietet hervorragende Voraussetzungen für Eigennutzer ebenso wie für Kapitalanleger.
Überblick Objekt Nr. W2045025K
- Kaufpreis
- 254.700,00 €
- Provision
- je 3,57% inkl. 19% MWSt aus dem Kaufpreis, zahlbar bei Vertragsabschluss vom Käufer und Verkäufer inkl. MwSt.
- Wohnfläche
- 94,1 m²
- Anzahl Zimmer
- 3,0
- Befeuerung
- Gas
- Stellplatzart
- Freiplatz
- Baujahr
- 1988
- Frei ab
- Bezugsfrei
Energieausweis
- Energieausweistyp
- Verbrauchsausweis
- Gültig bis
- 22.11.2028
- Energiekennwert
- 116,00 kWh/(m²*a)
- Mit Warmwasser
- Ja
- Energieeffizienzklasse
- D
- Baujahr
- 2018













