2-Zimmer-Wohnung mit Balkon und TG-Stellplatz -Erbbaurecht mit geringen Raten-
Objektbeschreibung
Objekttitel
2-Zimmer-Wohnung mit Balkon und TG-Stellplatz
-Erbbaurecht mit geringen Raten-
Dreizeiler
13. OG
Lage
Die angebotene Wohnung befindet sich im Stadtteil Erlangen-Büchenbach. Die unmittelbare Umgebung bietet eine Vielzahl von Freizeitmöglichkeiten sowie eine ausgezeichnete Infrastruktur.
Alle Geschäfte für den den täglichen Bedarf wie Supermärkte, Apotheken, Banken und Restaurants finden Sie in unmittelbarer Nähe. Die Verkehrsanbindung ist hervorragend, die Autobahnanbindung ist sehr gut. Eine Bushaltestelle befindet sich in der Nähe, sodass Sie bequem das Stadtzentrum von Erlangen erreichen können.
Ausstatt_beschr
- Balkon
- TG-Stellplatz inkl.
- moderne Duschbad
- hochwertige Einbauküche
- neuwertige Oberböden in Holzoptik
- Waschmaschinenanschluss im Bad
- Haussprechanlage
- Abstellraum
- Weiße Kunststoff-Isolierglasfenster
- Warmwasserversorgung elektrisch - Durchlauferhitzer
- elektrische Speicherheizung
Objektbeschreibung
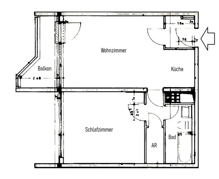
Zum Verkauf steht eine vermietete 2-Zimmer-Wohnung in Erlangen-Büchenbach. Die Wohnung befindet sich im 13. Obergeschoss einer gepflegten Wohnanlage mit insgesamt 17 Etagen. Die Wohnfläche von ca. 58 m² verteilt sich auf ein Wohnzimmer mit Zugang zum Balkon, ein Schlafzimmer, eine Küche, einen Flur, einen Abstellraum sowie ein Duschbad mit Waschmaschinenanschluss. Zur Wohnung gehören ein eigenes Kellerabteil und ein Tiefgaragenstellplatz. Die Wohnanlage verfügt über zwei Personenaufzüge sowie einen Fahrradabstellplatz für die gemeinschaftliche Nutzung.
Es handelt sich hier um eine Immobilie auf Erbbaugrund.
Der Erbbauvertrag läuft noch 46 Jahre bis 2071, der Erbbauzins beträgt derzeit 217.14 EUR jährlich. Der Erbbauzins ist bei einer Vermietung des Objektes steuerlich absetzbar.
Sonstige_angaben
- Kaltmieteinnahmen: 7.200,00 EUR pro Jahr
- Vermietet seit: 15.03.2025
- Wohngeld: 208,00 EUR monatlich inkl. Erbbauzins
- Erhaltungsrücklage (Stand 31.12.2024):
- Gesamt Wohnanlage 552.869,00 EUR zzgl. Tiefgarage 15.225,00 EUR
- anteilig Wohnung: 3.741,00 EUR zzgl. TG-Stellplatz: 237,00 EUR
Überblick Objekt Nr. W2053025K
- Kaufpreis
- 180.000,00 €
- Jahresnettomiete
- 7.200,00 €
- Provision
- 3,57 % inkl. 19 % MwSt. zahlb. je v. Käufer und Verkäufer inkl. MwSt.
- Wohnfläche
- 58,0 m²
- Anzahl Zimmer
- 2,0
- Küche
- Einbauküche, Offen
- Befeuerung
- Elektro
- Stellplatzart
- Tiefgarage,
- Baujahr
- 1973
- Frei ab
- vermietet
Energieausweis
- Energieausweistyp
- Verbrauchsausweis
- Gültig bis
- 01.07.2028
- Energiekennwert
- 71,00 kWh/(m²*a)
- Mit Warmwasser
- Ja
- Energieeffizienzklasse
- B
- Baujahr
- 2007
















