Kompaktes Sandwichgrundstück zum Kauf in Erlangen-Süd
Objektbeschreibung
Objekttitel
Kompaktes Sandwichgrundstück zum Kauf in Erlangen-Süd
Dreizeiler
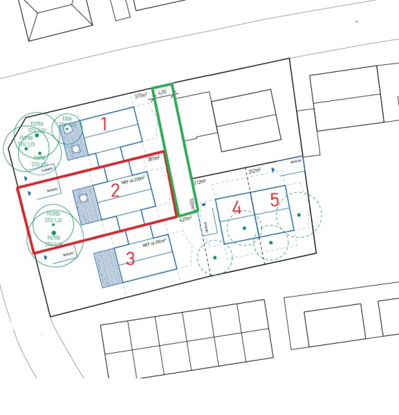
Grundstück Nr. 2
Lage
Das Grundstück liegt in einer ruhigen Gegend von Erlangen-Süd, umgeben von Ein- und Mehrfamilienhäusern. Einkaufsmöglichkeiten, Schulen, Restaurants sowie Ärzte und Apotheken sind in wenigen Minuten erreichbar. Der Stadtteil bietet eine gute Anbindung an den öffentlichen Nahverkehr durch Stadtbusse und die S-Bahn sowie eine günstige PKW-Anbindung an die Hauptverkehrsstraßen und die Autobahnen A73 und A6.
Ausstatt_beschr
Für das Gebiet gibt es keinen Bebauungplan.
Objektbeschreibung
Zum Verkauf steht ein erschlossenes Sandwichgrundstück mit einer Fläche von ca. 381 m² zzgl. ca. 20 m² Weganteil in Erlangen-Süd.
Das Grundstück liegt in einer ruhigen Wohngegend, umgeben von Ein- und Mehrfamilienhäusern. Am Rand des Grundstücks befindet sich eine Baumgruppe, die erhalten werden sollte.
Für das Gebiet gibt es keinen Bebauungsplan. Eine Bauvoranfrage für eine Einfamilienhausbebauung (Erdgeschoss + 1. Obergeschoss + Dachgeschoss) ist eingereicht.
Ein Altobjekt ist derzeit noch vorhanden, der Abriss erfolgt durch den Verkäufer.
Gerne stellen wir bei Interesse weitere Informationen zur Verfügung.
Überblick Objekt Nr. W2068026K
- Kaufpreis
- 459.000,00 €
- Provision
- 3,57 % inkl. 19 % MwSt. zahlb. je v. Käufer und Verkäufer inkl. MwSt.
- Grundstücksfläche
- 401,0 m²



