Moderne 4-Zimmer-Wohnung als Kapitalanlage
Objektbeschreibung
Objekttitel
Moderne 4-Zimmer-Wohnung als Kapitalanlage
Dreizeiler
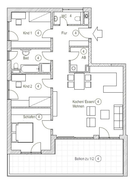
1.OG
Lage
Die Immobilie befindet sich in ruhiger und gewachsener Wohnlage in Mering. Das direkte Umfeld ist geprägt von gepflegter Wohnbebauung mit Ein- und Zweifamilienhäusern sowie kleinen Mehrfamilienhäusern. Einkaufsmöglichkeiten für den täglichen Bedarf, Bäckereien, Apotheken sowie Ärzte sind in wenigen Minuten erreichbar. Auch Kindergärten und Schulen befinden sich in komfortabler Nähe. Das Ortszentrum mit weiteren Geschäften und gastronomischen Angeboten ist schnell erreichbar. Der Bahnhof Mering mit regelmäßigen Verbindungen in Richtung Augsburg und München bietet eine hervorragende Anbindung für Pendler. Zudem sind die Bundesstraße B2 sowie die Autobahn A8 (München–Stuttgart) zügig erreichbar.
Ausstatt_beschr
• Balkon
• Kellerabteil
• 1 Außenstellplatz
• 1 TG Stellplatz
• Abstellraum
• Bad mit Fenster Dusche und Wanne
• Gäste WC
• Offene Küche
• Parkettboden
• Fußbodenheizung
• Personenaufzug
• Kunststofffenster 3 Fach vergl.
• Elektrische Außenrollos
Objektbeschreibung
Zum Verkauf steht diese attraktive 4-Zimmer-Wohnung mit großzügigem Balkon im 1. Obergeschoss eines 2019 erbauten Mehrfamilienhauses mit 11 Parteien.
Die Wohnung wird ausschließlich als Kapitalanlage angeboten. Die Wohnung ist derzeit vermietet. Der seit 2021 zuverlässige Mieter, der zugleich der Sohn des Vermieters ist, möchte das Mietverhältnis gerne langfristig fortführen.
Die Wohnung überzeugt durch ihren durchdachten Grundriss und die hochwertige Ausstattung, wie den großzügigen Balkon, das Bad mit Dusche und Badewanne, hochwertigen Parkettboden sowie die Fußbodenheizung.
Im Kaufpreis enthalten sind ein Kellerabteil, ein Außenstellplatz und ein Tiefgaragenstellplatz. Das Haus ist mit einem Personenaufzug ausgestattet.
Sonstige_angaben
* Hausgeld: 337,00 EUR / Umlagefähig: ca. 200,00 EUR
* Erhaltungsrücklage: Gesamt 25.759,00 EUR / Anteil 2.634,00 EUR (31.12.2024)
Überblick Objekt Nr. W2076026K
- Kaufpreis
- 650.000,00 €
- Provision
- 3,57 % inkl. 19 % MwSt. zahlb. je v. Käufer und Verkäufer inkl. MwSt.
- Anzahl Zimmer
- 4,0
- Küche
- Offen
- Befeuerung
- Elektro, Pellets
- Stellplatzart
- Freiplatz,
- Baujahr
- 2019
Energieausweis
- Energieausweistyp
- Bedarfsausweis
- Gültig bis
- 08.10.2029
- Energiebedarf
- 64,10
- Energieeffizienzklasse
- B
- Baujahr
- 2019








